Modell B – husbil på hjul. Det är den minsta husbilsmodellen på vårt utbud, med en mycket smart och genialiskt löst inredning. Huset är litet och effektivt och funktionellt och tar inte mycket plats. Model B är baserad på skandinavisk stil och en enkel traditionell form. Stugan kommer i tre yttre dimensioner. Huset har 12 funktionella interiörvarianter. Det yttre utseendet, såsom färgschema, materialval och fönsterplacering, kan anpassas för att möta kundens krav. Stugan är rektangulär, täckt med ett mjukt tak med en lutning på 12 grader. Takets vinkel kan fritt ökas – anpassas till de lokala kraven på tomten.
Våra hus finns i tre efterbehandlingsstandarder:
Grundläggande – En grundvariant av ett färdigt hus med en uppsättning installationer, men utan möbler.
Bekvämlighet – En färdig variant med badrum och kök, inklusive köksmöbler, badrumsmöbler, sanitetsartiklar och hushållsapparater, men utan möbler i rummen.
Premium – Fullt färdigställt och utrustat med en komplett uppsättning möbler och apparater genom hela huset i alla rum.
Dessutom har du möjlighet till omfattande personalisering från inslagen av ytterligare husinredning
Detaljerad information om tillgängliga standarder finns i produktbroschyren och FAQ-sektionen.
Varje modell av mobilhuset har en stål- och trästruktur, vilket säkerställer hög hållbarhet och styrka. Vikten på husbilar, beroende på storleken på ramen, är cirka 6 ton. Mobila hus har axlar och hjul som gör att de kan transporteras inom investerarens tomt, vilket gör att du bekvämt kan placera huset på en anvisad plats.
Mobile house B
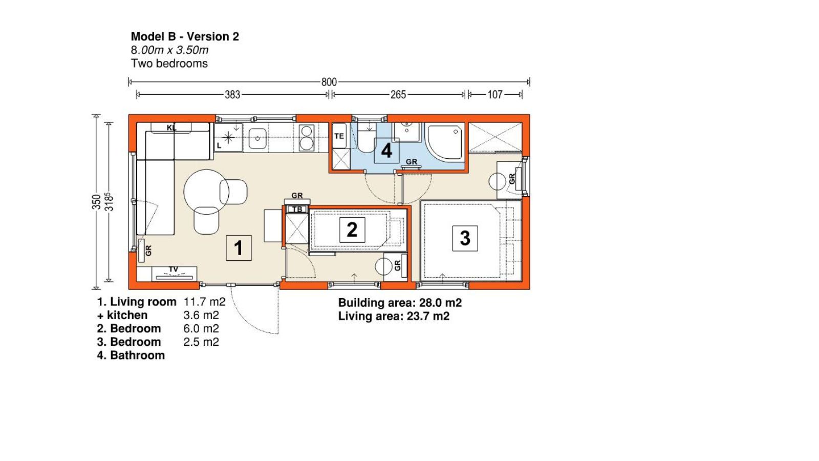
Året runt 23 m² – 31 m² husbil i nyckelfärdig standard
| Byggarea | 28 m² |
| Boarea | 23 m² |
| Rum | 3 rum och kök |
| Våning | 1 |
+46 (0) 73 096 03 34
Specifikation
- Planlösning: Två separata sovrum, badrum, vardagsrum med pentry, hall
- Yttermått: längd 8.0 m, bredd 3.5 m, höjd 3.5 m
- Innermått: längd 7.6 m, bredd 3.2 m, höjd 2.3 – 2.6 m
- Isolering: 20 cm mineralull
- Fönster: PVC, 2-glas
- Uppvärmning: elektriska element eller elektrisk golvvärme + luft/luft-värmepump (Möjlighet)
- Kylning: luft/luft-värmepump
- Fasad: trä / stående sömsplåt / kompositpaneler
- Tak: metalltakpannor eller stående sömplåt, 12 graders lutning
- Vikt: 6 ton
- Husstruktur: Stål och trä
- Energiprestanda: EP 65.6 kWh/m2
De vanligaste frågorna om denna produkt
Har du inte hittat svar på din fråga? Ring oss!
Ingår i priset
- Komplett och färdigbyggd byggnad
- Komplett elektrisk, vatten- och avloppsinstallation
- Ventilation (Fläktar finns tillgängliga i Comfort Standard)
- Badrum: Kompakt toalettstol, duschbricka och beslag
- Axel(ar) och hjul för gårdsförflyttning
Ingår ej i priset
- Transport
- Montering på plats
- Två paket:
Comfort-paket:
- Duschhörna (80×80 eller 90×90 beroende på modell)
- Badrumstvättställ med blandare, underskåp, spegel och LED-bakgrundsbelysning
- Ventilationsfläkt för badrum
- 50L elektrisk varmvattenberedare i inbyggt skåp
- Badrumsradiator med elektrisk stege
- Panel elvärmare i varje rum
- Nedre köksskåp i fanér med topp
- Överskåp i fanér med LED-bakgrundsbelysning i köket
- Diskbänk med kran i köket
- Inbyggd kyl under bänk med frysfack
- Elhäll med två brännare
- Köksfläkt inbyggd i överskåp
Premium-paket:
- Hörnsoffa eller bäddsoffa med förvaringsutrymme (beroende på modell)
- Matbord med fyra stolar
- TV-skåp i vardagsrummet
- Väggskåp i vardagsrummet
- 160 cm bred säng i master bedroom med madrass och sängkorg
- Sängar i barnens sovrum med madrasser
- Garderob i sovrummet
- Garderob i barnens sovrum
- Sängbord och bord i sovrum (beroende på modell)
- Väggskåp ovanför sängarna i sovrummen (beroende på modell)
- Klädda eller möbelbräda sänggavlar i sovrum
Tillval
- Comfort-paket
- Premium-paket
Garanterat återköp
Vi erbjuder inte återköp av den här produkten.
Betalning
Betalningen för ditt hus är uppdelad i 3 stadier säkrade genom ett kontrakt:
- 50% reservationsavgift vid kontraktsskrivning
- 40% betalning efter att byggnaden byggts i vår fabrik
- 10% betalning efter att byggnaden anländer till kunden






























