Modell C – husbil på hjul. Vårt förslag är en medelstor husbil inom intervallet 33 m² – 37 m² bebyggd yta. Det är en praktisk, funktionell stuga med modern stil, upprätthållen i ett ljust, rent färgschema, rimligt skalat och prissatt. Huset har tio tillgängliga inredningsvarianter. Det yttre utseendet – färgschema, val av ytbehandlingsmaterial och fönsterplacering kan skräddarsys efter kundens specifika önskemål. Huset är rektangulärt, täckt med tak i 12 graders lutning.
Våra hus finns i tre efterbehandlingsstandarder:
Grundläggande – en grundvariant av ett färdigt hem, med en uppsättning installationer, men utan möbler.
Bekvämlighet – en färdig variant med badrum och kök, köksmöbler, badrumsmöbler, sanitetsutrustning och hushållsapparater, men utan möbler i rummen.
Premium – fullt färdig och utrustad med möbler och vitvaror i hela huset i alla rum.
Dessutom har du möjlighet till omfattande personalisering från inslagen av ytterligare husinredning.
Detaljerad information om tillgängliga standarder finns i produktbroschyren och FAQ-sektionen.
Varje modell av mobilhuset har en stål- och trästruktur, vilket säkerställer hög hållbarhet och styrka. Vikten av husbilar, beroende på storleken på ramen, är cirka 7 ton. Mobila hus har axlar och hjul som gör att de kan transporteras inom investerarens tomt, vilket gör att du bekvämt kan placera huset på en anvisad plats.
Mobile house C
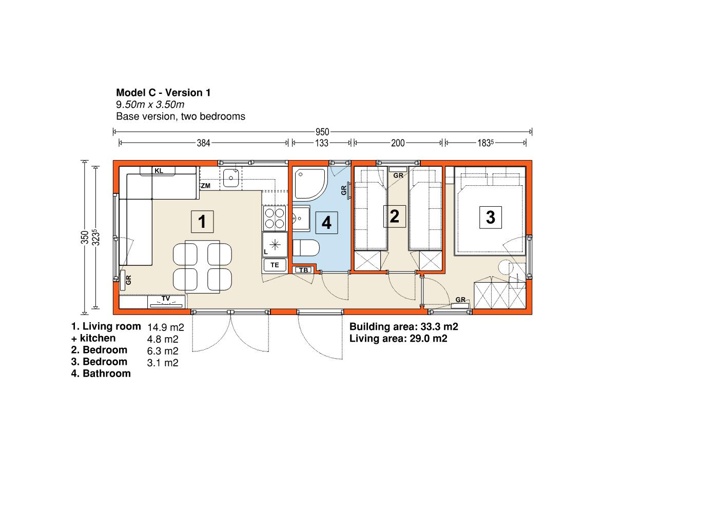
Året runt 29 m² – 32 m² husbil i nyckelfärdig standard
| Byggarea | 33 m² |
| Boarea | 29 m² |
| Rum | 3 |
| Våning | 1 |
+46 (0) 73 096 03 34
Specifikation
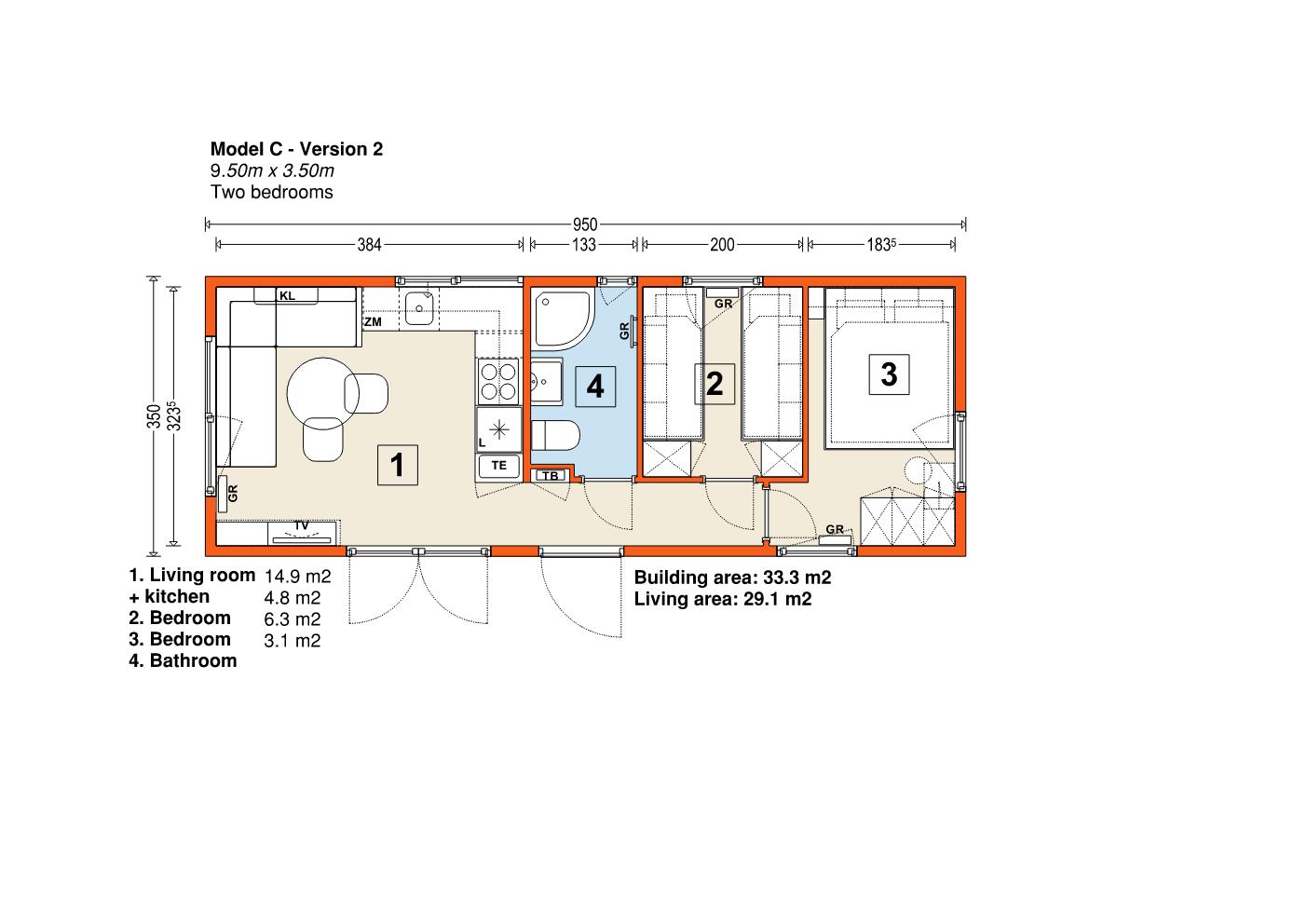
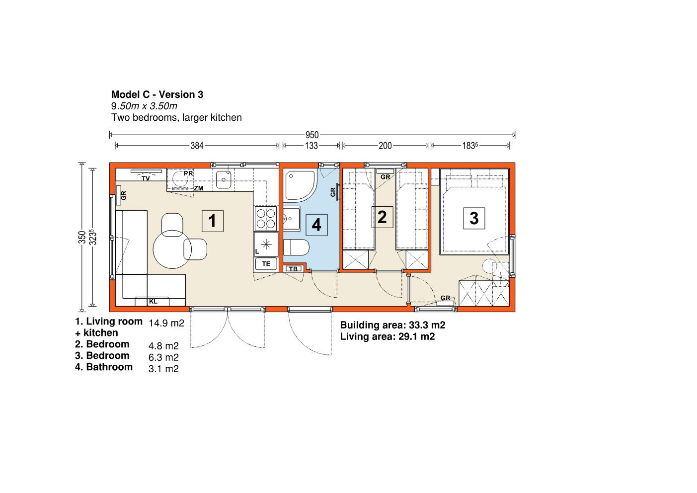
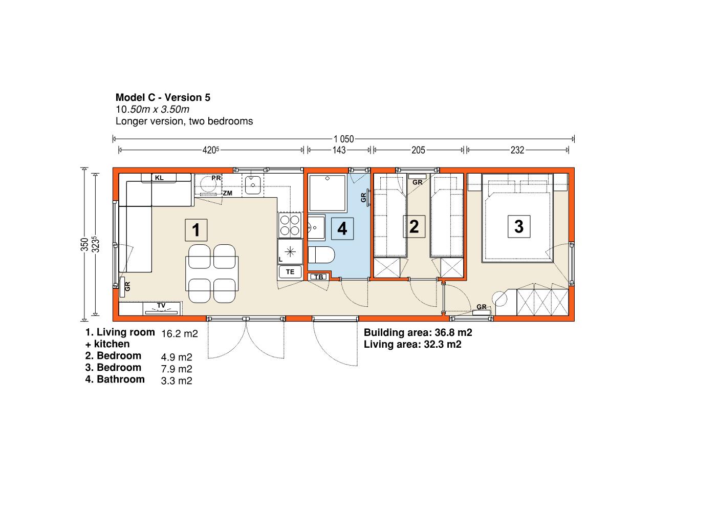
- Planlösning: Separera två sovrum, badrum, vardagsrum med pentry, hall
- Utanför mått: längd 9.5 m, bredd 3.5 m, höjd 3.4 m
- Innermått: längd 7.1 m, bredd 3.2 m, höjd 2.3 – 2.6 m
- Isolering: 20 cm mineralull
- Fönster: PVC, 2-glas
- Uppvärmning: elektriska element eller elektrisk golvvärme + luft/luft-värmepump (Möjlighet)
- Kylning: luft/luft-värmepump
- Fasad: trä / stående sömsplåt / kompositpaneler
- Tak: metalltakpannor eller stående sömplåt, 14 graders lutning
- Vikt: 7 ton
- Husstruktur: Stål och trä
- Energiprestanda: EP 66.2 kWh/m2
De vanligaste frågorna om denna produkt
Har du inte hittat svar på din fråga? Ring oss!
Ingår i priset
- Komplett och färdig byggnad
- Komplett el-, vatten- och avloppsinstallation
- Komplett ventilation (fläktar finns i Comfort Standard)
- Badrum: Kompakt toalettskål, duschkar och armaturer
- Axel(ar) och hjul för gårdstransport
Ingår ej i priset
- Transport
- Montering på plats
- Två paket:
Comfort-paket:
- Duschhörna (80×80 eller 90×90 beroende på modell)
- Badrumstvättställ med blandare, underskåp, spegel och LED-bakgrundsbelysning
- Ventilationsfläkt för badrum
- 50L elektrisk varmvattenberedare i inbyggt skåp
- Badrumsradiator med elektrisk stege
- Panel elvärmare i varje rum
- Nedre köksskåp i fanér med topp
- Överskåp i fanér med LED-bakgrundsbelysning i köket
- Diskbänk med kran i köket
- Inbyggd kyl under bänk med frysfack
- Elhäll med två brännare
- Köksfläkt inbyggd i överskåp
Premium-paket:
- Hörnsoffa eller bäddsoffa med förvaringsutrymme (beroende på modell)
- Matbord med fyra stolar
- TV-skåp i vardagsrummet
- Väggskåp i vardagsrummet
- 160 cm bred säng i master bedroom med madrass och sängkorg
- Sängar i barnens sovrum med madrasser
- Garderob i sovrummet
- Garderob i barnens sovrum
- Sängbord och bord i sovrum (beroende på modell)
- Väggskåp ovanför sängarna i sovrummen (beroende på modell)
- Klädda eller möbelbräda sänggavlar i sovrum
Tillval
- Comfort-paket
- Premium-paket
Garanterat återköp
Vi erbjuder inte återköp av den här produkten.
Betalning
Betalningen för ditt hus är uppdelad i 3 stadier säkrade genom ett kontrakt:
- 50% reservationsavgift vid kontraktsskrivning
- 40% betalning efter att byggnaden byggts i vår fabrik
- 10% betalning efter att byggnaden anländer till kunden



























