Model E – mobilhus på hjul. Kompakt, mångsidig och designad för rörlighet. Enkel att transportera och installera, den erbjuder bekvämlighet och frihet för ett liv i farten. En perfekt lösning för fritidshus, camping eller platser där bygglov inte är möjligt.
De grundläggande dimensionerna är 10.5 x 4.0 m, och kan förlängas till 12.0 x 4.0 m. Funktioner inkluderar ett hörnfönster på balkongen, 6 olika layoutvarianter, anpassningsbara exteriörer och möjligheten att kombinera moduler för mer utrymme. Obegränsade möjligheter.
Våra hus finns tillgängliga i tre olika standarder:
Basic – En grundvariant av ett färdigt hus med en uppsättning installationer, men utan möbler.
Comfort – En färdig variant med badrum och kök, inklusive köksmöbler, badrumsmöbler, sanitetsartiklar och hushållsapparater, men utan möbler i rummen.
Premium – Fullt färdigställt och utrustat med en komplett uppsättning möbler och apparater genom hela huset i alla rum.
Dessutom har du möjlighet till omfattande anpassning med tillägg av ytterligare husmöbler.
Detaljerad information om tillgängliga standarder finns i produktbroschyren och i FAQ-sektionen.
Varje modell av det mobila huset har en stål- och trästruktur som garanterar hög hållbarhet och styrka. Vikten på de mobila husen varierar beroende på ramens storlek och ligger mellan cirka 6 ton till 10 ton. De mobila husen har sina egna axlar och hjul som gör det möjligt att transportera dem inom Investerarens område och placera huset på en vald plats på ett bekvämt sätt.
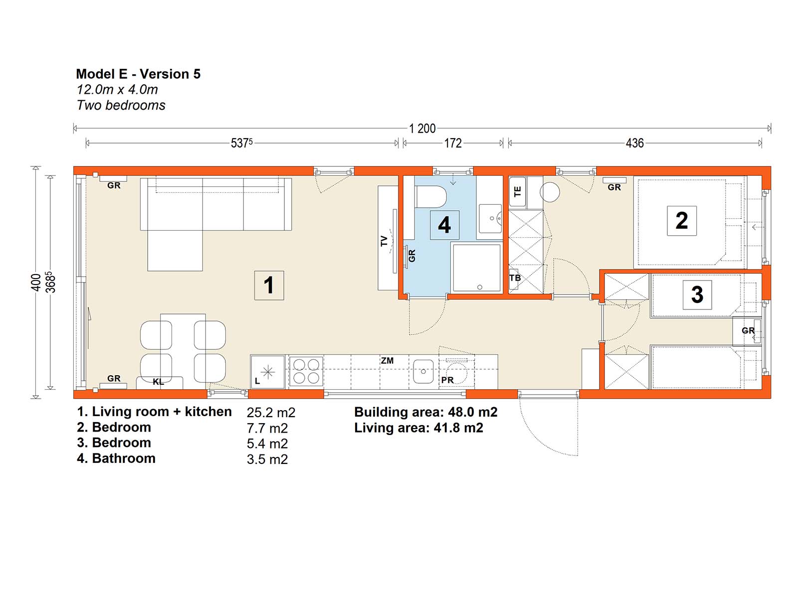
Mobile house E
Året-runt 42 kvm nyckelfärdigt attefallshus, fritidshus
| Byggarea | 42 m² |
| Boarea | 36 m² |
| Rum | 3 rum och kök |
| Våning | 1 |
+46 (0) 73 096 03 34
Specifikation
- Planlösning: Separata två sovrum, badrum, vardagsrum med pentry, hall
- Yttermått: längd 10.6 m, bredd 4.2 m, höjd 3.6 m
- Innermått: längd 10.2 m, bredd 3.7 m, höjd 2.5 m
- Isolering: 20 cm mineralull
- Fönster: PVC, 3-glas
- Uppvärmning: elektriska element eller elektrisk golvvärme + luft/luft-värmepump
- Kylning: luft/luft-värmepump
- Fasad: trä / stående sömsplåt / kompositpaneler
- Tak: metalltakpannor eller stående sömplåt, 1.5 graders lutning
- Vikt: 9 ton
- Husstruktur: Stål och trä
- Energiprestanda: EP 69.9 kWh/m2
De vanligaste frågorna om denna produkt
Har du inte hittat svar på din fråga? Ring oss!
Ingår i priset
- Komplett och färdigbyggd byggnad i nyckelfärdigt standard
- In- och utvändig belysning
- Uppvärmnings- och kylsystem
- Komplett elektrisk, vatten- och avloppsinstallation
- Komplett ventilation
- Badrum: Kompakt toalettstol, duschbricka och beslag
- Ritningar
- Axel(ar) och hjul för gårdsförflyttning
Ingår ej i priset
- Transport
- Montering på plats
- Två paket:
Comfort-paket:
- Duschhörna (80×80 eller 90×90 beroende på modell)
- Badrumstvättställ med blandare, underskåp, spegel och LED-bakgrundsbelysning
- Ventilationsfläkt för badrum
- 50L elektrisk varmvattenberedare i inbyggt skåp
- Elektrisk handdukstork i badrummet
- Panelradiatorer med elektrisk värme i varje rum
- Standardfanerade underskåp i köket med bänkskiva
- Överskåp i fanér med LED-bakgrundsbelysning i köket
- Diskbänk med kran i köket
- Inbyggd kylskåp med frysfack under bänkskivan
- Två-plattors elektriskt spis
- Köksfläkt integrerad i överskåp
Premium-paket:
- Hörnsoffa eller bäddsoffa med förvaringsutrymme (beroende på modell)
- Matbord med fyra stolar
- TV-skåp i vardagsrummet
- Väggskåp i vardagsrummet
- Säng med en bredd på 160 cm i sovrummet med madrass och förvaringslåda
- Sängar i barnens sovrum med madrasser
- Garderob i sovrummet
- Garderob i barnens sovrum
- Nattduksbord och bord i sovrummen (beroende på modell)
- Väggskåp ovanför sängarna i sovrummen (beroende på modell)
- Klädda eller möbelboard-sänggavlar i sovrummen
Tillval
- Comfort-paket: xxx EUR exkl. moms
- Premium-paket: xxx EUR exkl. moms
Garanterat återköp
Vi erbjuder inte återköp av den här produkten.
Betalning
Betalningen för ditt hus är uppdelad i 3 stadier säkrade genom ett kontrakt:
- 50% reservationsavgift vid kontraktsskrivning
- 30% betalning efter att byggnaden byggts i vår fabrik
- 20% betalning efter att byggnaden anländer till kunden
































