Modell MG3 – modulärt trähus. Det är en fyramodulsbyggnad som kan monteras på en dag. Den finns i 17 varianter med olika storlekar och layouter, från 38.5 m2 till 71.8 m2. Huset har en minimalistisk design med en träfasad och anpassningsbara färger. Det kan utökas genom att lägga till fler moduler och fasaden kan färdigställas med trä, stål eller kompositpaneler.
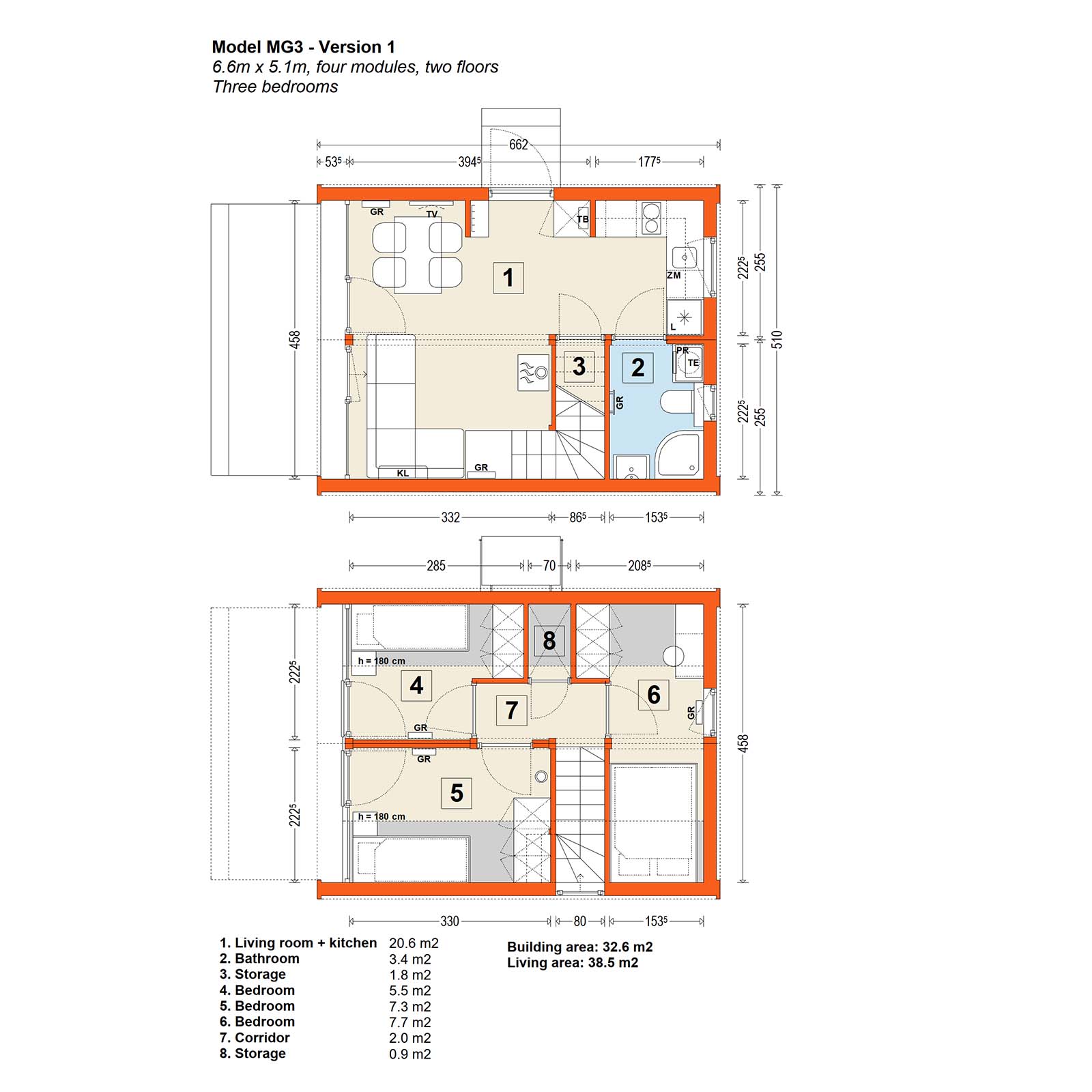
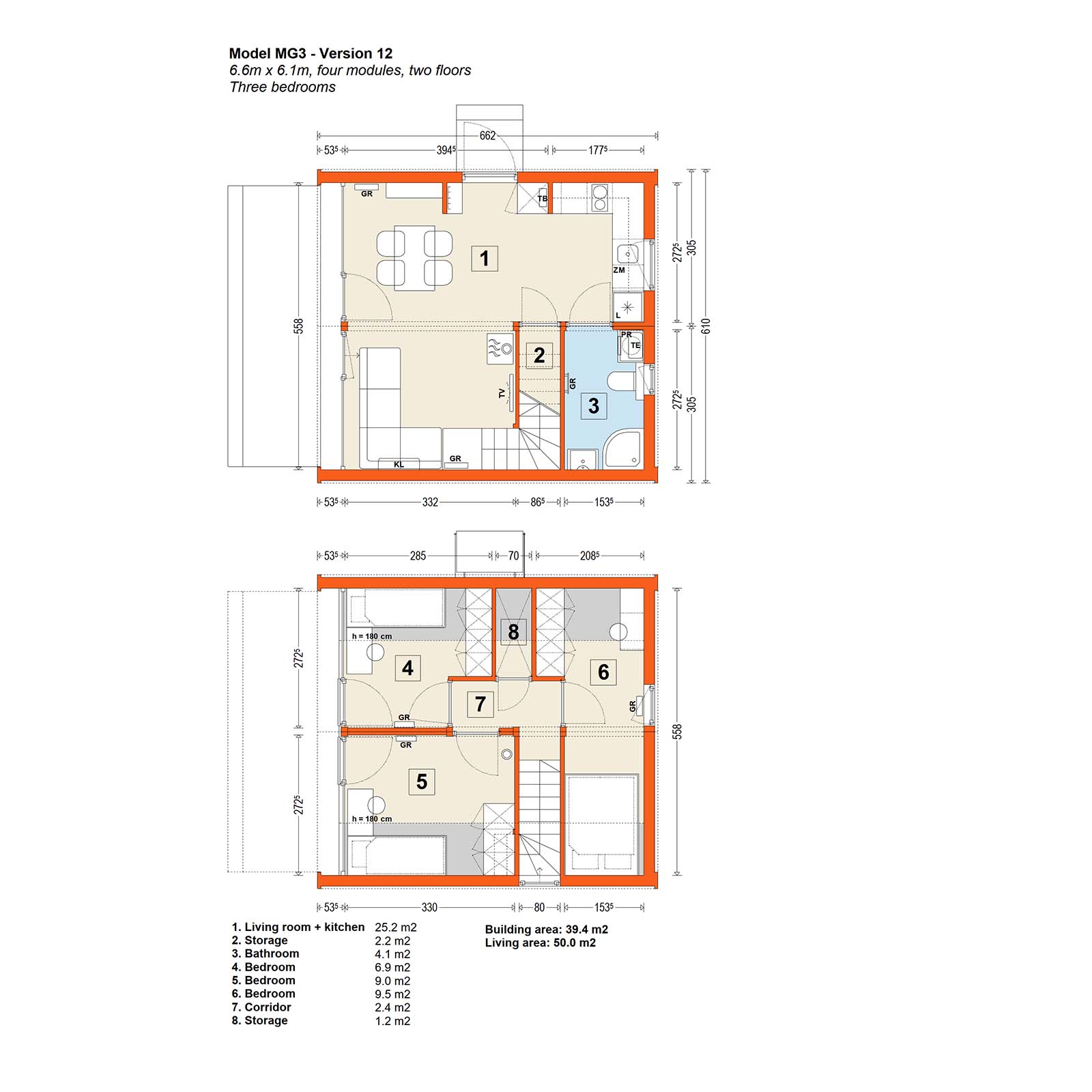
De grundläggande dimensionerna är 6.6 x 5.1 m och kan förlängas till 10.7 x 6.1 m. De största varianterna av det modulära huset MG3 erbjuder extra rum, större vardagsutrymmen samt flera sovrum och badrum. Interiören i huset är helt färdigställd med olika alternativ för vägg-, golv- och takbeklädnad. Kunder kan också välja att beställa ett fullt möblerat hus med möbler, apparater och sanitära redskap inkluderade.
Våra hus finns tillgängliga i tre färdigställningsstandarder:
Grundläggande – en grundvariant av ett färdigt hus med en uppsättning installationer, men utan möbler.
Bekvämlighet – en färdig variant med ett badrum och kök, med köksmöbler, badrumsmöbler, sanitetsredskap och hushållsapparater, men utan möbler i rummen.
Premium – fullt färdigställd och utrustad med en uppsättning möbler och apparater i hela huset i alla rum. Dessutom har du möjlighet till omfattande anpassning med extra husinredningselement.
Detaljerad information om tillgängliga standarder finns i produktbroschyren och i avsnittet Vanliga frågor.
Varje modell av det modulära huset har en stål- och trästruktur, vilket garanterar hög hållbarhet och styrka. Vikten på MG3-huset, beroende på ramens storlek, är cirka 15 ton.
Modular house MG3
Året-runt 38 kvm nyckelfärdigt hus
| Byggarea | 44 m² |
| Boarea | 37 m² |
| Rum | 4 rum och kök |
| Våning | 2 |
+46 (0) 73 096 03 34
Specifikation
- Planlösning: Separata tre sovrum, badrum, vardagsrum med pentry, hall
- Yttermått: längd 6.6 m, bredd 5.1 m, höjd 6.4 m
- Innermått: längd 5.8 m, bredd 4.6 m
- Isolering: 20 cm mineralull
- Fönster: PVC, 3-glas
- Uppvärmning: elektriska element eller elektrisk golvvärme + luft/luft-värmepump
- Kylning: luft/luft-värmepump
- Fasad: trä / stående sömsplåt / kompositpaneler
- Tak: metalltakpannor eller stående sömplåt, 37 graders lutning
- Vikt: 15 ton
- Husstruktur: Stål och trä
- Energiprestanda: EP 69.6 kWh/m2
De vanligaste frågorna om denna produkt
Har du inte hittat svar på din fråga? Ring oss!
Ingår i priset
- Komplett och färdigbyggd byggnad i nyckelfärdigt standard
- In- och utvändig belysning
- Uppvärmnings- och kylsystem
- Komplett elektrisk, vatten- och avloppsinstallation
- Komplett ventilation
- Badrum: Kompakt toalettstol, duschbricka och beslag
- Ritningar
Ingår ej i priset
- Transport
- Montering på plats
- Två paket:
Comfort-paket:
- Duschhörna (80×80 eller 90×90 beroende på modell)
- Badrumstvättställ med blandare, underskåp, spegel och LED-bakgrundsbelysning
- Ventilationsfläkt för badrum
- 50L elektrisk varmvattenberedare i inbyggt skåp
- Elektrisk handdukstork i badrummet
- Panelradiatorer med elektrisk värme i varje rum
- Standardfanerade underskåp i köket med bänkskiva
- Överskåp i fanér med LED-bakgrundsbelysning i köket
- Diskbänk med kran i köket
- Inbyggd kylskåp med frysfack under bänkskivan
- Två-plattors elektriskt spis
- Köksfläkt integrerad i överskåp
Premium-paket:
- Hörnsoffa eller bäddsoffa med förvaringsutrymme (beroende på modell)
- Matbord med fyra stolar
- TV-skåp i vardagsrummet
- Väggskåp i vardagsrummet
- Säng med en bredd på 160 cm i sovrummet med madrass och förvaringslåda
- Sängar i barnens sovrum med madrasser
- Garderob i sovrummet
- Garderob i barnens sovrum
- Nattduksbord och bord i sovrummen (beroende på modell)
- Väggskåp ovanför sängarna i sovrummen (beroende på modell)
- Klädda eller möbelboard-sänggavlar i sovrummen
Tillval
- Comfort-paket: xxx EUR exkl. moms
- Premium-paket: xxx EUR exkl. moms
Garanterat återköp
Vi erbjuder inte återköp av den här produkten.
Betalning
Betalningen för ditt hus är uppdelad i 3 stadier säkrade genom ett kontrakt:
- 50% reservationsavgift vid kontraktsskrivning
- 30% betalning efter att byggnaden byggts i vår fabri
- 20% betalning efter att byggnaden anländer till kunden







































