Modell MG4 – modulärt trähus. Denna byggnad består av fyra moduler som kan monteras på en enda dag. Den finns tillgänglig i nio olika stilar, med varierande storlek och planlösning, där den minsta är 40,3 m2 och den största är 76,0 m2. Designen är klassisk, med en träfasad och ett utbud av färgalternativ för anpassning. Fler moduler kan läggas till för utbyggnad, och fasaden kan kläs i antingen trä, stål eller kompositmaterial.
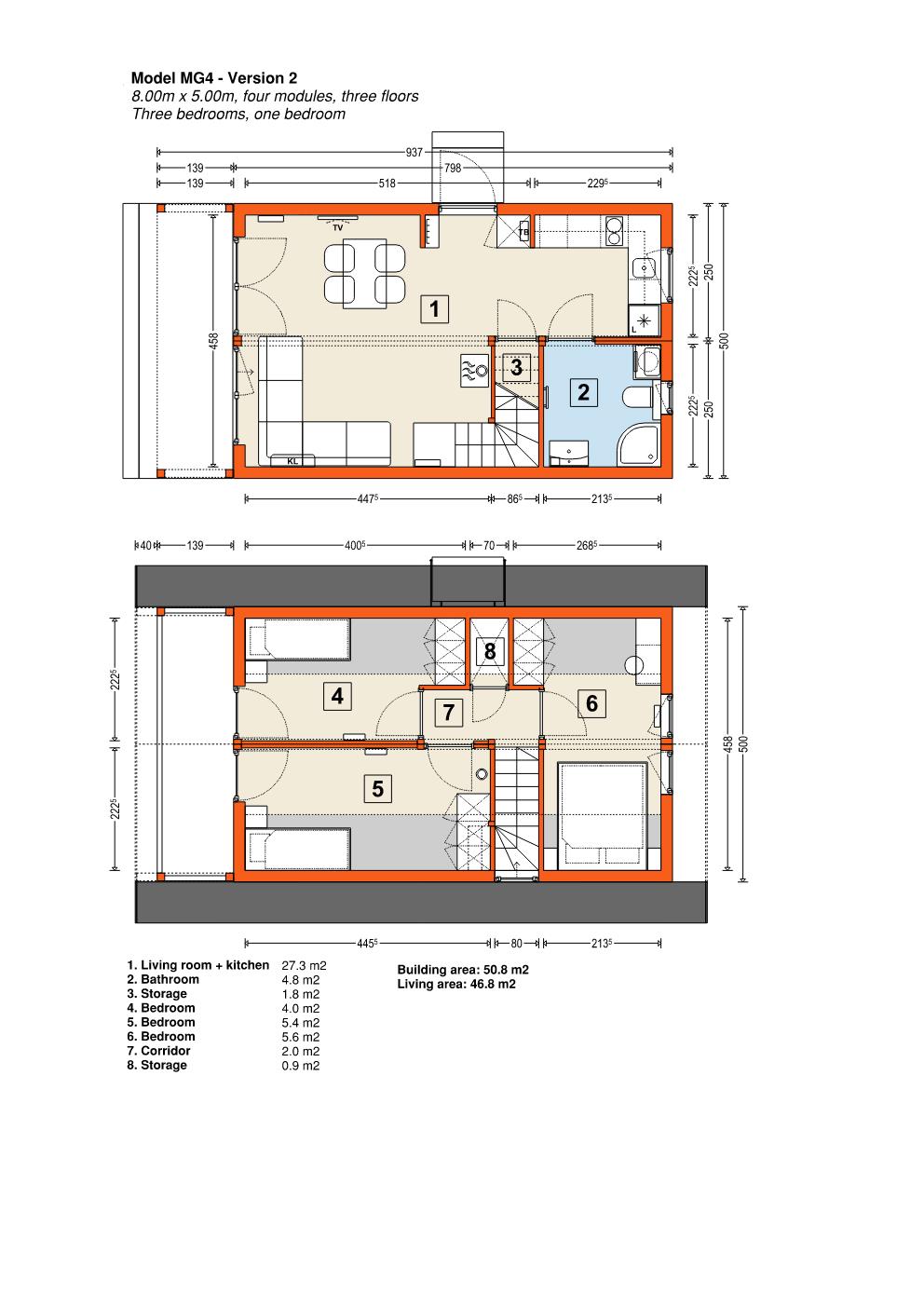
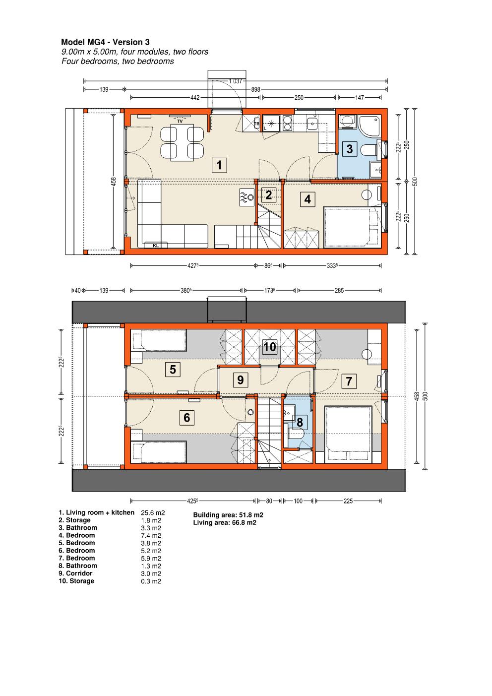
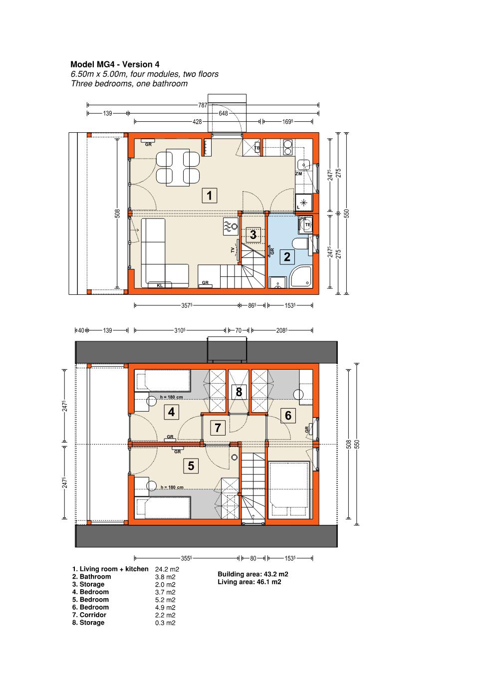
Standardstorleken är 7,9 x 5,0 m, men den kan utökas till 10,4 x 6,1 m. De mer avancerade versionerna av det modulära huset MG4 inkluderar extra rum, större vardagsutrymmen och flera sovrum och badrum. Inuti är huset fullt utrustat med olika val för vägg-, golv- och takbeklädnader. Dessutom finns möjligheten att köpa huset fullt möblerat, inklusive all inredning, vitvaror och badrumsinredning.
Våra hus finns tillgängliga i tre färdiga standarder:
Grundläggande – en grundvariant av ett färdigt hus med en uppsättning installationer, men utan möbler.
Bekvämlighet – en färdig variant med ett badrum och kök, med köksmöbler, badrumsmöbler, sanitetsredskap och hushållsapparater, men utan möbler i rummen.
Premium – fullt färdigställd och utrustad med en uppsättning möbler och apparater i hela huset i alla rum.
Dessutom har du möjlighet till omfattande anpassning med extra husinredningselement.
Detaljerad information om tillgängliga standarder finns i produktbroschyren och i avsnittet Vanliga frågor.
Varje modell av det modulära huset har en stål- och trästruktur, vilket garanterar hög hållbarhet och styrka. Vikten på MG3-huset, beroende på ramens storlek, är cirka 15 ton.
Modular house MG4
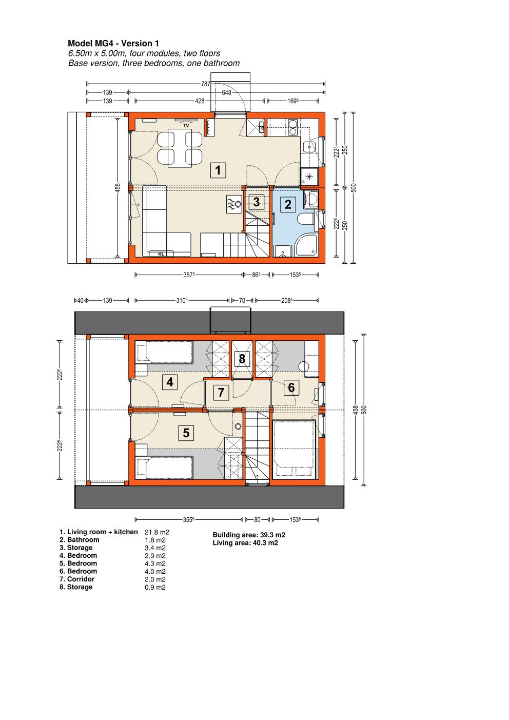
Året runt 38 m² – 72 m² modulhus i nyckelfärdig standard
| Byggarea | 39 m² |
| Boarea | 40 m² |
| Rum | 4 rum och kök |
| Våning | 2 |
+46 (0) 73 096 03 34
Specifikation
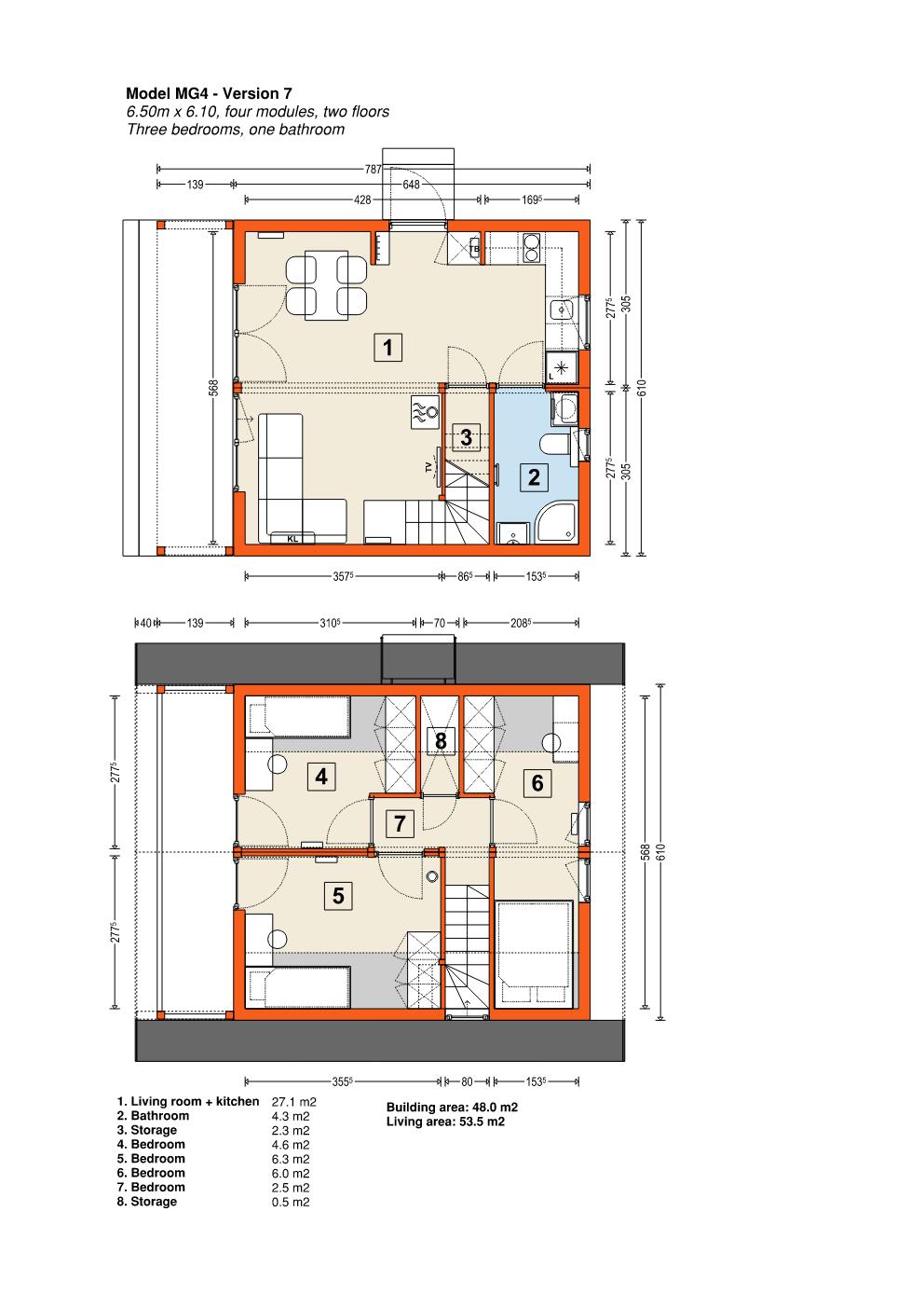
- Planlösning: Tre separata sovrum, badrum, vardagsrum med pentry, hall
- Yttermått: längd 7.9 m, bredd 5.0 m, höjd 6.5 m
- Innermått: längd 6.0 m, bredd 4.5 m
- Isolering: 20 cm mineralull
- Fönster: PVC, 2-glas
- Uppvärmning: elektriska element eller elektrisk golvvärme + luft/luft-värmepump (Möjlighet)
- Kylning: luft/luft-värmepump (Möjlighet)
- Fasad: trä / stående sömsplåt / kompositpaneler
- Tak: metalltakpannor eller stående sömplåt, 37 graders lutning
- Vikt: 15 ton
- Husstruktur: Stål och trä
- Energiprestanda: EP 68.8 kWh/m2
De vanligaste frågorna om denna produkt
Har du inte hittat svar på din fråga? Ring oss!
Ingår i priset
- Komplett och färdigbyggd byggnad
- Komplett elektrisk, vatten- och avloppsinstallation
- Komplett ventilation (fläktar finns i Comfort Standard)
- Badrum: Kompakt toalettskål, duschkar och armaturer
Ingår ej i priset
- Transport
- Montering på plats
- Två paket:
Comfort-paket:
- Duschhörna (80×80 eller 90×90 beroende på modell)
- Badrumstvättställ med blandare, underskåp, spegel och LED-bakgrundsbelysning
- Frånluftsbadfläkt
- 50L elpanna i inbyggnadsskåp
- Badrumsradiator med elektrisk stege
- Panel elvärmare i varje rum
- Nedre köksskåp i fanér med topp
- Övre köksskåp i fanér med LED-bakgrundsbelysning
- Diskbänk med blandare
- Inbyggd kyl under bänk med frysfack
- Elhäll med två brännare
- Köksfläkt inbyggd i överskåp
Premium-paket:
- Hörn eller soffa med sovfunktion och sängbehållare (beroende på modell)
- Matbord med fyra stolar
- TV-skåp i vardagsrummet
- Väggskåp i vardagsrummet
- 160 cm bred säng i master bedroom med madrass och sängkorg
- Sängar i barnens sovrum med madrasser
- Garderob i sovrummet
- Garderob i barnens sovrum
- Sängbord och bord i sovrum (beroende på modell)
- Väggskåp i sovrum ovanför sängar (beroende på modell)
- Klädda eller möbelbräda sänggavlar i sovrum
Tillval
- Comfort-paket
- Premium-paket
Garanterat återköp
Vi erbjuder inte återköp av den här produkten.
Betalning
Betalningen för ditt hus är uppdelad i 3 stadier säkrade genom ett kontrakt:
- 50% reservationsavgift vid kontraktsskrivning
- 40% betalning efter att byggnaden byggts i vår fabrik
- 10% betalning efter att byggnaden anländer till kunden


























