Avangarde 50 är ett året runt-modulhus, fullt utrustat och färdigställt till nyckelfärdig standard. Konstruktionen är baserad på en stålram som säkerställer stabilitet och hållbarhet. Huset har utmärkt termisk isolering vilket minimerar uppvärmnings- och kylkostnader. Interiören är gjord av högkvalitativa material, inklusive väggpaneler och vinylgolv. Badrummet är färdigställt med stenkakel, högkvalitativa armaturer och sanitetskeramik. Köket är fullt utrustat med vitvaror.
Fasaden kan utgöras av naturligt trä eller fasadpaneler vilket ger huset ett modernt och elegant utseende.
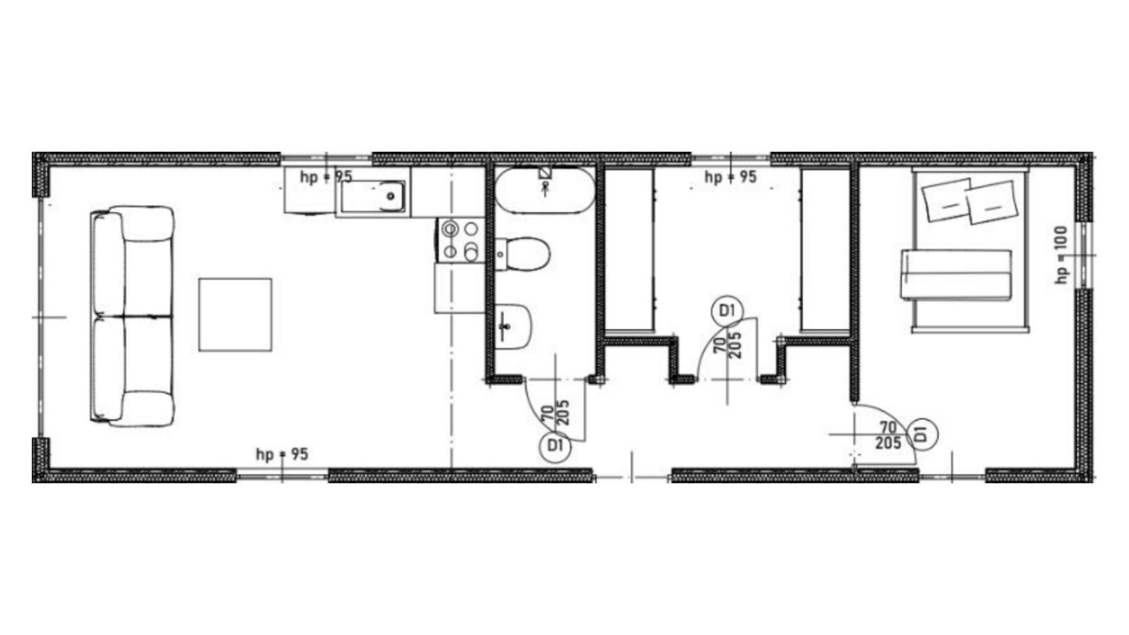
Tack vare den genomtänkta layouten erbjuder huset ett bekvämt bostadsutrymme för hela familjen.
MOMO Avangarde 50
Enplans modulhus, 50 m², nyckelfärdig standard
| Byggarea | 50 m² |
| Boarea | 42 m² |
| Rum | 3 |
| Våning | 1 |
+46 (0) 73 096 03 34
Specifikation
- Layout: vardagsrum med pentry, badrum, stort sovrum, extrarum
- Yttermått: längd 12,5 m, bredd 4,0 m, höjd 3,3 m
- Isolering: PUR, U=0.15 W/m²K
- Fönster: PVC, treglas
- Uppvärmning: luft/luftvärmepump 3,5 kW, infraröda värmepaneler eller elektrisk golvvärme
- Tak: sadeltak, täckt med metall
- Fasad: naturligt trä behandlat med klar impregnering eller fasadpaneler Innerväggar: väggpaneler
- Golv: vinylpaneler
- Badrum:: stenkakel, högkvalitativa armaturer, sanitetskeramik, termostatisk duschblandare
- Bathroom: stone tiles, high-quality fittings, ceramics, thermostatic shower faucet
- Kök: högkvalitativa material, fullt utrustat med vitvaror
De vanligaste frågorna om denna produkt
Har du inte hittat svar på din fråga? Ring oss!
Ingår i priset
- Komplett och färdig byggnad till ”nyckelfärdig” standard
- Fullt utrustat kök
- Komplett el-, VVS- och ventilationssystem
- Inom- och utomhusbelysning
- Innerväggar: Interior Design-paneler
- Golv: vinylgolv
- Badrum: redo att användas (vita armaturer – handfat, dusch, toalett)
- Uppvärmning/kylning: luft/luftvärmepump, elektrisk golvvärme eller infraröda väggpaneler
- Innerdörrar: vita
- Ytterdörrar: stål, svarta
Ingår ej i priset
- Transport och montering
- Grundläggning
- Anslutning till el, vatten och avlopp
Tillval
Interiör- och exteriöranpassning
Axel(ar) och hjul för gårdsförflyttning
Garanterat återköp
Vi erbjuder inte våra kunder återköp av denna produkt.
Betalning
Betalningen för ditt hus är uppdelad i 3 steg som säkras genom ett kontrakt:
- 50% reservationsavgift vid kontraktsskrivning
- 40% betalning efter att byggnaden är färdigställd i vår fabrik
- 10% betalning efter att byggnaden anländer till kunden























