Inspirerat av spansk arkitektur erbjuder detta modulära stålhus en unik blandning av stil och funktionalitet. Det levereras ursprungligen i två moduler, men dess design möjliggör enkel tillägg av extra moduler, vilket möter växande behov. Dess utmärkta isolering, med ett U-värde på 0,15, säkerställer bekväma levnadsvillkor året runt.
Husets interiör och exteriör kan fullständigt anpassas, vilket tillåter ägarna att skräddarsy det efter sina specifika smaker och krav. Leveranstiden för huset är ungefär tre månader, och dess montering kan slutföras på ett snabbt 2-3 dagar. Designen hämtar inspiration från sydeuropeisk arkitektur, vilket skapar ett ljust och mysigt utrymme. Detta modulära hem passar idealiskt för en liten familj, vilket gör det till en idealisk semesterbostad eller ett charmigt gästhus.
Dessutom krävs mycket enkla grundläggningar, vilket förenklar den inledande installationsprocessen och gör det till ett tillgängligt alternativ för många.
MOMO Carmen
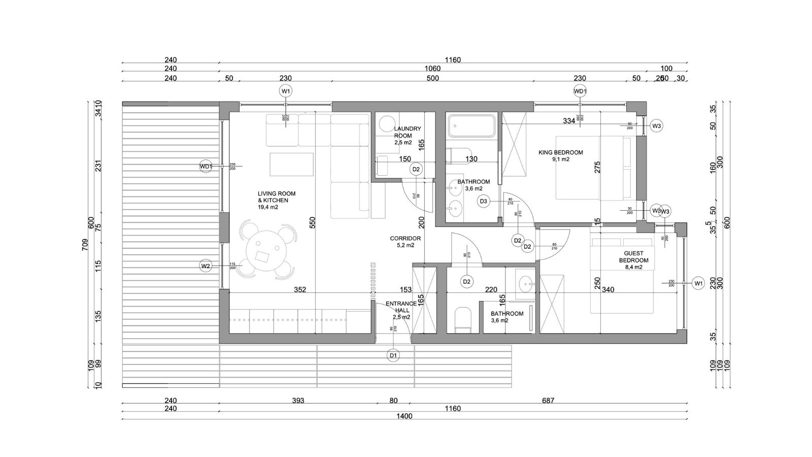
Modulhus i nyckelfärdig standard, 67m2, spansk arkitektur
| Byggarea | 67 m² |
| Boarea | 55 m² |
| Rum | 3 |
| Våning | 1 |
+46 (0) 73 096 03 34
Specifikation
- Layout: 2 sovrum, 2 badrum, vardagsrum med pentry, entréhall, tvättstuga
- Yttermått: längd 11,6 m, bredd 6,0 m, höjd 3,2 m
- Isolering: 12 cm PIR
- Fönster: Aluminium, 3-glas
- Uppvärmning: elektrisk golvvärme
- Fasad: puts
- Inre väggar: målade med delvis trä och lameller
Ingår i priset
- Komplett och färdigbyggt hus i nyckelfärdig standard
- Kök med alla apparater
- Inre och yttre belysning
- Komplett elektrisk, vatten och avloppsinstallation
- Komplett ventilation
- Ritningar
- Inre väggar: vit målning, träelement, lameller
- Golv: keramiska plattor (badrum), vinylpaneler
- Badrum: klart att använda (vitt montage – handfat, dusch, toalett)
- Uppvärmning: elektrisk golvvärme
- Kylning: luftkonditionering
- Belysning: spotlights
- Inre dörrar: vita
- Ytterdörr: ståldörr, svart
Ingår ej i priset
- Kran för att lyfta byggnaden från lastbilen
- Grundläggning
- Anslutning till el-, vatten- och avloppsinstallation
- Transport
- Montering på plats
Tillval
- Trä- eller HPL-fasad
- Anpassning av interiör och exteriör
Garanterat återköp
Vi erbjuder inte våra kunder återköp av denna produkt.
Betalning
Betalningen för ditt hus är uppdelad i 3 stadier säkrade genom ett kontrakt:
- 50% reservationsavgift vid kontraktsskrivning
- 30% betalning efter att byggnaden byggts i vår fabrik
- 20% betalning efter att byggnaden anländer till kunden


















