MOMO Holiday House är ett modulärt året-runt-hus baserat på en stålram. Detta rymliga enplans lilla hus har ett mycket rymligt vardagsrum med kök och badrum.
Huset byggs på vår produktionsplats och genomgår alla produktionssteg tills det är helt färdigt. Efter slutförandet på produktionsplatsen transporteras det till sin slutdestination.
MOMO Holiday House monteras inom 1-2 dagar och är sedan redo att användas. Huset levereras som en färdig produkt.
MOMO Holiday House finns också tillgängligt i några olika storlekar.
- 44 m2 med extra husmoduler på 4,3 m bredd, 4,1 m längd och 3,2 m höjd (ytterligare ett sovrum)
- 58 m2 som byggs av två standardhusmoduler (ytterligare 2 sovrum)
- 74 m2 som byggs av 2,5 standardhusmoduler (ytterligare 2 sovrum och extra vardagsrum)
- 90 m2 som byggs av 3 standardhusmoduler (ytterligare 3 sovrum och extra vardagsrum)
MOMO Holiday House
30 m2 modul- stålhus i nyckelnyckelfärdig standard
| Byggarea | 34 m² |
| Boarea | 30 m² |
| Rum | 1 |
| Våning | 1 |
+46 (0) 73 096 03 34
Specifikation
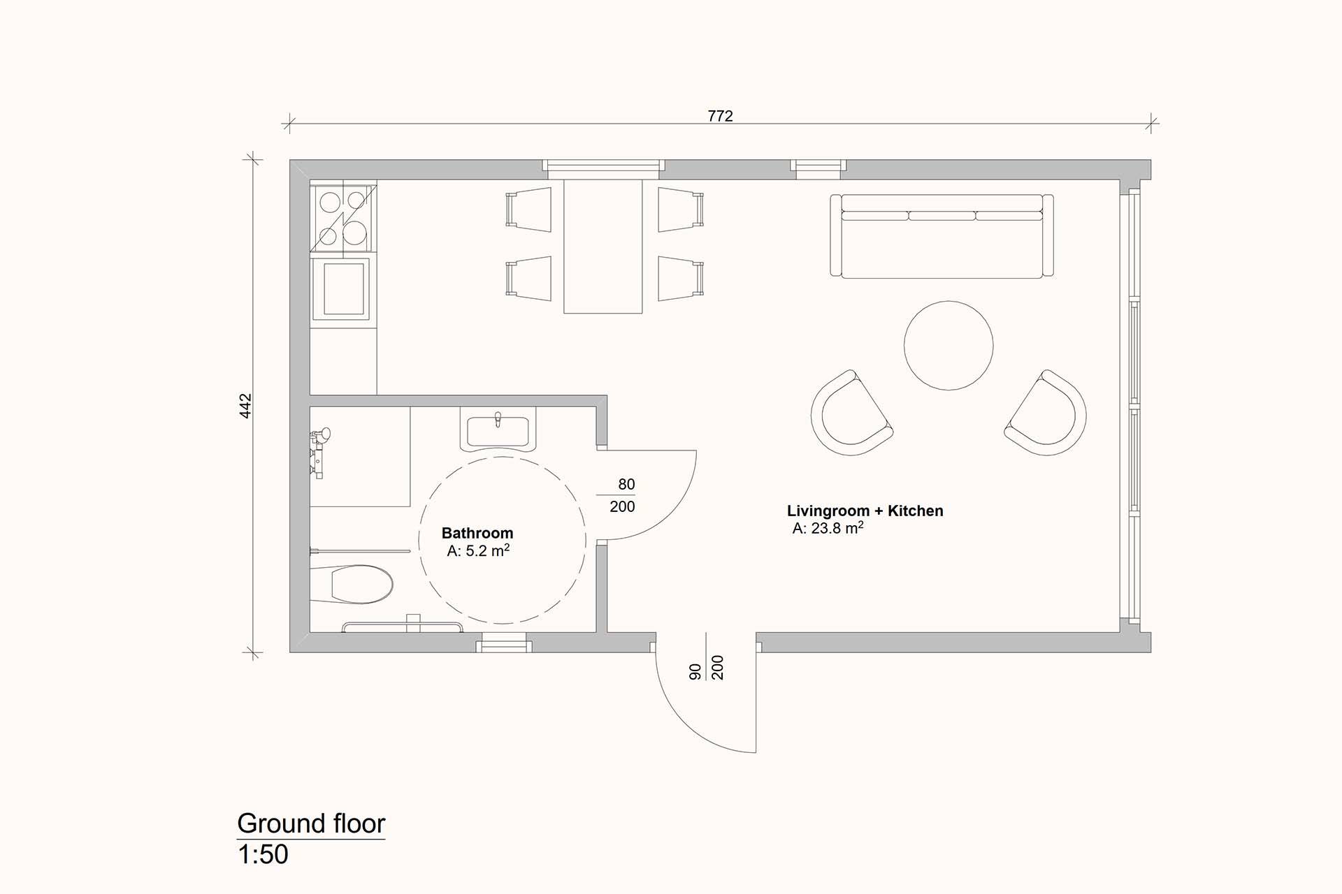
- Planlösning: badrum, vardagsrum med kokvrå, garderob.
- Yttersida: längd: 7.7 m, bredd 4.4 m, höjd 3.2 m
- Isolering: 16 cm PIR
- Fönster: aluminiumprofil, 3-glas
- Uppvärmning: elektriskt element
- Tak: seam panel
- Fasad: träpanel
- Innerväggar: gipsskivor; målat i vit färg
Förverkliganden
De vanligaste frågorna om denna produkt
Har du inte hittat svar på din fråga? Ring oss!
Ingår i priset
- Fullständigt hus i nyckelnyckelfärdig standard
- Intern och extern belysning
- Värmesystem
- Komplett el-, vatten- och avloppsinstallation
- Komplett ventilation
- Ritningar
- Innerväggar: vit färg
- Golv: klinker/golvpaneler PVC AC4 (valfritt: vinylpaneler/träpaneler
- Badrum: redo att användas (vit uppsättning – handfat, dusch, toalett, panna 80 L)
- Uppvärmning: elradiator / infraröd panel
- Belysning: spotbelysning
- Innerdörrar: vit
- Ytterdörr: ståldörr, svart
- Balustrad: stål
- Transport
- Montering på plats
Ingår ej i priset
- Kök
- Kran för att lyfta byggnaden från en lastbil
- Grunder
- Anslutning till el-, vatten- och avloppsanläggning
Tillval
- Kök (IKEA) med alla vitvaror: 65 000 kr inkl. moms
- A/C med uppvärmningsfunktion 25 000 kr inkl. moms
Garanterat återköp
Vi erbjuder inte återköp av den här produkten.
Betalning
Betalningen för ditt hus är uppdelad i 3 stadier säkrade genom ett kontrakt:
- 50% reservationsavgift vid kontraktsskrivning
- 30% betalning efter att byggnaden byggts i vår fabrik
- 20% betalning efter att byggnaden anländer till kunden




















